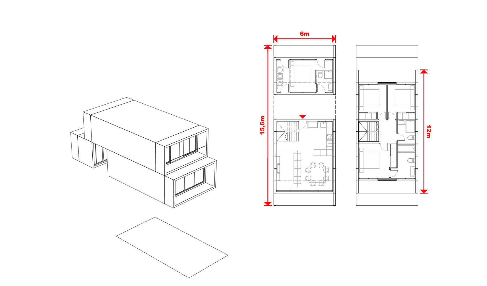
Les llars unifamiliars CLASSIC.SLA2 són de planta COMPACTA i coberta plana, s’organitzen en PLANTA BAIXA i PLANTA PRIMERA.
Les CLASSIC.SLA2 són òptimes en solars ESTRETS a partir de 12m d’amplada, es distribueixen en sala d’estar, menjador i cuina (1 sol espai), bany, safareig i una zona d’habitacions amb bany. La planta baixa pot disposar de zona d’habitacions amb bany o habitació suite, segons les necessitats del client. La planta primera es distribueix amb la zona d’habitacions i banys.
Les llars SMART es construeixen amb un sistema de xassís d’injecció de formigó. Es caracteritza per la rapidesa d’implantació: en 2 dies s’apilen els mòduls i la casa queda instal·lada. Les peces prefabricades tenen unes dimensions de 3 metres d’alt, 6 metres d’ample i 1,2 metres de fons. Es poden apilar fins a 3 altures. Es defineix un nivell bàsic que s’amplia amb diferents packs d’acabats. L’acabat interior es realitza al taller i ja venen tots els materials instal·lats dins les peces que es col·locaran al solar. L’ alt grau d’industrialització permet un molt bon aïllament tèrmic i la inèrcia tèrmica del formigó augmenta la sensació de confort. El fet de ser peces independents evita la transmissió del so d’impacte a través de l’estructura.
Els habitatges SMART permeten la configuració de funcions intel·ligents (CFI) per a la il·luminació, les persianes, el clima i la seguretat que es controlen des d’una aplicació d’smartphone o tauleta.





