
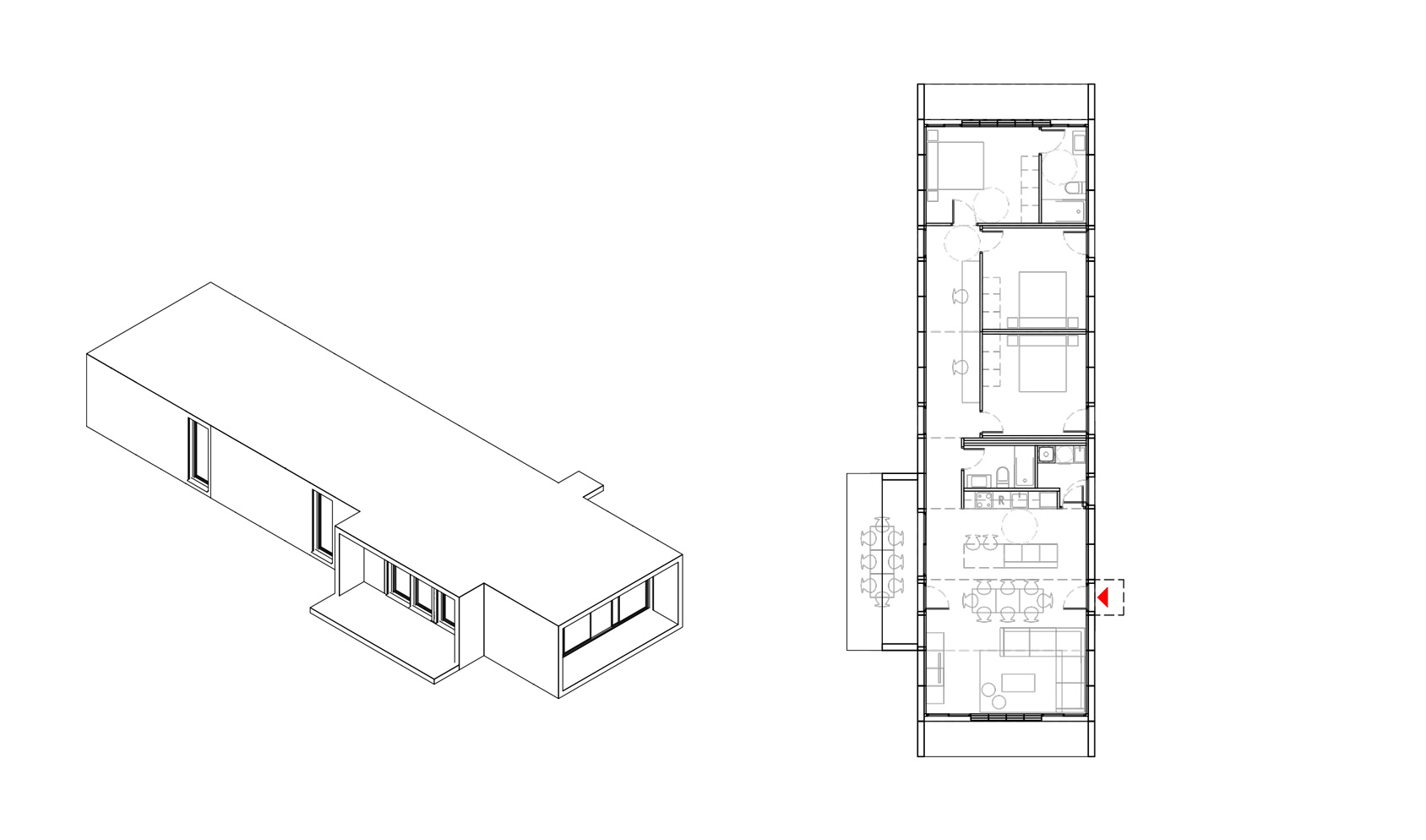
Esta tipología de vivienda unifamiliar es de planta  COMPACTA y cubierta plana, se organizan en PLANTA BAJA.
esta es óptima en solares ESTRECHOS a partir de 12 metros de ancho, se distribuyen en salón, comedor y cocina (1 solo espacio), baño, lavadero y una zona de habitaciones con baño.
Los hogares SMART se construyen con un sistema de chasis de inyección de hormigón. Se caracteriza por la rapidez de implantación: en 2 días se apilan los módulos y la casa queda instalada. Las piezas prefabricadas tienen unas dimensiones de 3 metros de alto, 6 metros de ancho y 1,2 metros de fondo. Se pueden apilar hasta 3 alturas. Se definen un chasis básico que se va completando con paquetes adicionales, perfeccionando la vivienda. El acabado interior se realiza en el taller y ya vienen todos los materiales instalados dentro las piezas que se colocarán en el solar. El alto grado de industrialización permite un muy bien aislamiento térmico y la inercia térmica del hormigón aumenta la sensación de confort. El hecho de ser piezas independientes evita la transmisión del sonido de impacto a través de la estructura.
Los hogares SMART permiten la configuración de funciones inteligentes (CFI) para la iluminación, las persianas, el clima y la seguridad que se controlan desde una aplicación de smartphone o tableta.




